
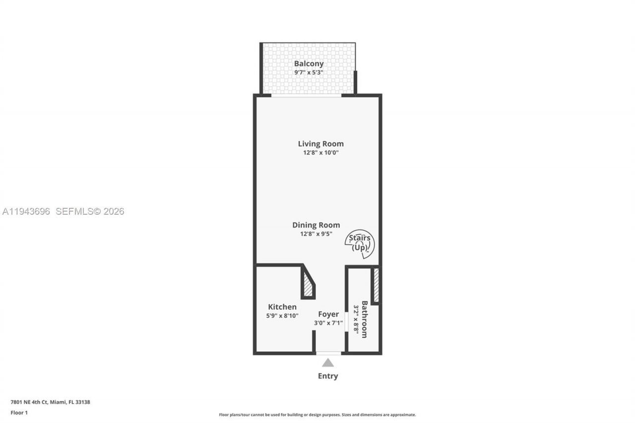
Looking for a 1-bed condo in the MIMO District? This two-story unit at Riverview Village puts you in the heart of the areas creative energy, just blocks from Biscayne Boulevard and all its culture, cafƩs, and color.With 746 square feet, this layout lives large?featuring two full bathrooms (one upstairs with a tub/shower combo, one downstairs with a stand-up shower), a dramatic fireman-style staircase, a full walk-in closet in your primary suite with additional storage throughout.Riverview Villa...Looking for a 1-bed condo in the MIMO District? This two-story unit at Riverview Village puts you in the heart of the areas creative energy, just blocks from Biscayne Boulevard and all its culture, cafƩs, and color.With 746 square feet, this layout lives large?featuring two full bathrooms (one upstairs with a tub/shower combo, one downstairs with a stand-up shower), a dramatic fireman-style staircase, a full walk-in closet in your primary suite with additional storage throughout.Riverview Village offers gated access, security cameras, a community pool, sauna, one assigned parking space, and a low monthly HOA.Located near Ironside, Morningside Park, local galleries, and coffee shops, with easy access to the Design District, Midtown, Miami Beach, Brickell, Miami International Airport, I-95 and more.
View MoreCourtesy of
Agency Name: Keller Williams Realty Miami Beach
Agency Phone: 305-695-1112
Agent Name: Peter Ortega
Presented by
Agent Name: Patricia Valdivieso
Agent Phone: 305.803.0098
Agency Title: The Keyes Company
Request Info
Send an email with a link to
7801 NE 4th Ct, Unit 511, Miami, FL 33138.
Email 7801 NE 4th Ct, Unit 511, Miami, FL 33138
Thank you for your inquiry! As a thank you, we have a Special Mortgage Offer for You.
We would like to provide you a free, no-obligation, home loan pre-approval review.