
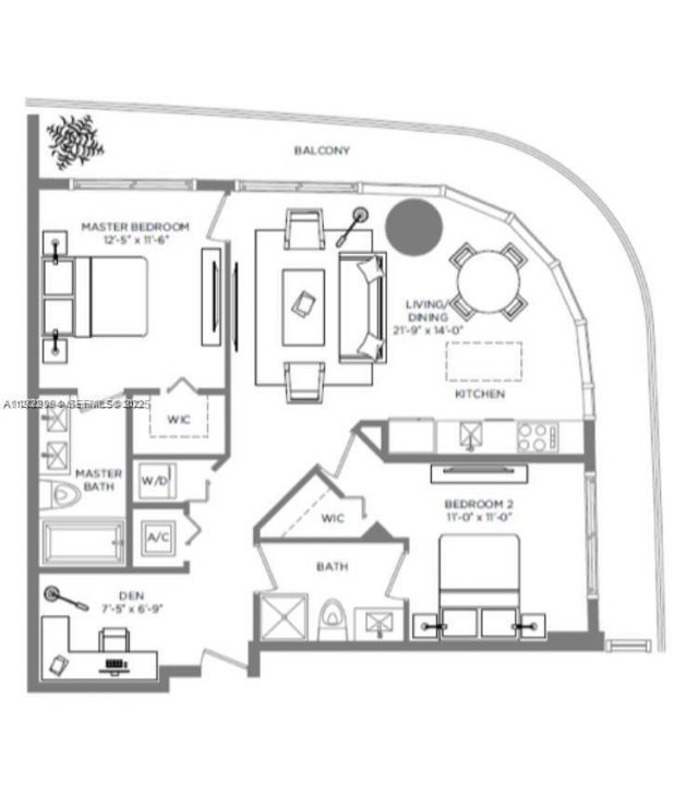
With a huge wrap-around balcony offering panoramic views of the Miami River and skyline, this luxury condo is located in the heart of Brickell. Thanks to floor-to-ceiling impact glass doors and windows, the unit enjoys natural sunlight from sunrise to sunset. This corner property features a split floor plan with two bedrooms, two bathrooms, plus a den for added comfort. Delivered turnkey, it comes fully furnished and completely outfitted. Building amenities include full-service concierge, gym, s...With a huge wrap-around balcony offering panoramic views of the Miami River and skyline, this luxury condo is located in the heart of Brickell. Thanks to floor-to-ceiling impact glass doors and windows, the unit enjoys natural sunlight from sunrise to sunset. This corner property features a split floor plan with two bedrooms, two bathrooms, plus a den for added comfort. Delivered turnkey, it comes fully furnished and completely outfitted. Building amenities include full-service concierge, gym, spa, two rooftop pools, and much more. The unit also comes with the best parking space in the entire complex. Cable and internet are included. Currently rented until 07/01/2026, this unit is ideal for investors as the building allows short-term rentals.
View MoreCourtesy of
Agency Name: LoKation
Agency Phone: 954-545-5583
Agent Name: Federico Strauch
Presented by
Agent Name: Patricia Valdivieso
Agent Phone: 305.803.0098
Agency Title: The Keyes Company
Request Info
Send an email with a link to
55 SW 9th St, Unit 3001, Miami, FL 33130.
Email 55 SW 9th St, Unit 3001, Miami, FL 33130
Thank you for your inquiry! As a thank you, we have a Special Mortgage Offer for You.
We would like to provide you a free, no-obligation, home loan pre-approval review.