
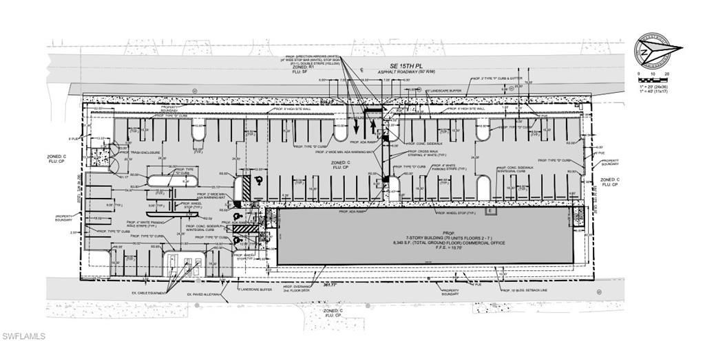
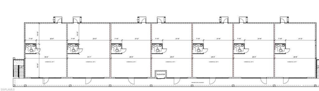
Located in the thriving South Cape Coral area. Entitled land with approved plans for a mixed-use development featuring workforce housing apartments and commercial space. This property is zoned C1 (confirm zoning for uses). The project includes 70 workforce housing apartments and 8,300 square feet of versatile commercial space. This property offers excellent access to public transportation, major highways, and local amenities, making it an attractive location for residents and commercial tenants....Located in the thriving South Cape Coral area. Entitled land with approved plans for a mixed-use development featuring workforce housing apartments and commercial space. This property is zoned C1 (confirm zoning for uses). The project includes 70 workforce housing apartments and 8,300 square feet of versatile commercial space. This property offers excellent access to public transportation, major highways, and local amenities, making it an attractive location for residents and commercial tenants. Deed-restricted under the Live Local Bill, requiring 40% of units to be rented to tenants earning less than 120% of the area median income (AMI). As of April 2024, Cape Coral's AMI is $88,800.
View MoreCourtesy of
Agency Name: Coast Life Properties LLC
Agency Phone: 239-402-5581
Agent Name: Kyle Doyon
Presented by
Agent Name: Patricia Valdivieso
Agent Phone: 305.803.0098
Agency Title: The Keyes Company
Request Info
Send an email with a link to
3731 SE 15th Pl, Cape Coral, FL 33904.
Email 3731 SE 15th Pl, Cape Coral, FL 33904
Thank you for your inquiry! As a thank you, we have a Special Mortgage Offer for You.
We would like to provide you a free, no-obligation, home loan pre-approval review.