
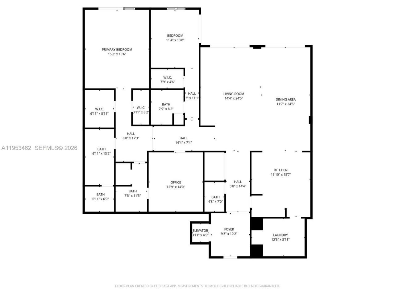
Wake up to ocean breezes and elevated coastal luxury at 3501 N Ocean Drive 4C, Hollywood Beach, in the prestigious Villas of Positano. This exceptional 2700 SF residence offers nearly 1000 SF of private terrace with sweeping ocean and Intracoastal views, just steps from the sand. The building has completed a full multi-year renovation, including structural upgrades, a brand-new roof and new plumbing throughout. The property is fully updated with no major improvements expected for the next 20 yea...Wake up to ocean breezes and elevated coastal luxury at 3501 N Ocean Drive 4C, Hollywood Beach, in the prestigious Villas of Positano. This exceptional 2700 SF residence offers nearly 1000 SF of private terrace with sweeping ocean and Intracoastal views, just steps from the sand. The building has completed a full multi-year renovation, including structural upgrades, a brand-new roof and new plumbing throughout. The property is fully updated with no major improvements expected for the next 20 years, offering peace of mind for oceanfront living. A private elevator foyer opens to a refined interior with marble flooring, LED lighting, and 9-foot hurricane-impact sliding glass doors that flood the home with natural light. The expansive terrace is designed for indoor-outdoor living with two distinct areas, smart motorized curtains, smart patio lighting, lush planters, a fireplace, hurricane screens, and a BBQ grill. The gourmet kitchen features high-end appliances and gas cooking. The residence includes smart toilets, new shower fixtures, and a custom Italian marble TV cabinet. The media/den has been converted into a third bedroom with suite bath, ideal for guests or a home office, plus three walk-in closets. Additional highlights include a new A/C system , new water heater, two private parking spaces, garage storage, and high-end furniture available for a turnkey purchase. Amenities include a private gym with sauna, complimentary valet, and direct beach access just one minute away
View MoreCourtesy of
Agency Name: Oppenheim Realty
Agency Phone: 786-862-5868
Agent Name: Roman Danyarov
Presented by
Agent Name: Patricia Valdivieso
Agent Phone: 305.803.0098
Agency Title: The Keyes Company
Request Info
Send an email with a link to
3501 N Ocean Dr, Unit 4C, Hollywood, FL 33019.
Email 3501 N Ocean Dr, Unit 4C, Hollywood, FL 33019
Thank you for your inquiry! As a thank you, we have a Special Mortgage Offer for You.
We would like to provide you a free, no-obligation, home loan pre-approval review.