
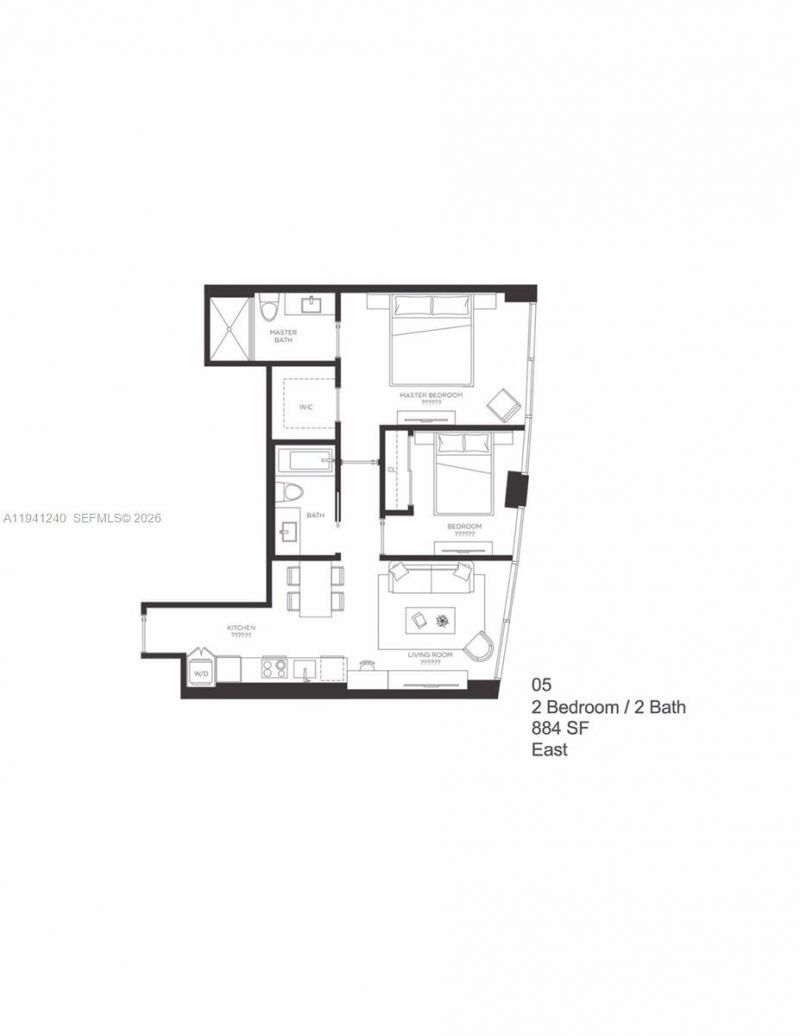
Seller motivated !!! District 225 is a newly built development with no rental restrictions, making it an exceptional opportunity for investors seeking Airbnb and other short-term rental platforms. This 2-bedroom residence LOOKING THEE BEST VIEWS EAST , the largest floor plan in the building, offers 884 sq ft of living space and is fully furnished, featuring smart-home technology and sophisticated interiors designed by Meshberg Design.The building rises 37 stories and features 343 modern residenc...Seller motivated !!! District 225 is a newly built development with no rental restrictions, making it an exceptional opportunity for investors seeking Airbnb and other short-term rental platforms. This 2-bedroom residence LOOKING THEE BEST VIEWS EAST , the largest floor plan in the building, offers 884 sq ft of living space and is fully furnished, featuring smart-home technology and sophisticated interiors designed by Meshberg Design.The building rises 37 stories and features 343 modern residences with a sleek, avant-garde architectural style. Residents enjoy over 25,000 sq ft of amenities, including a spectacular resort-style terrace with breathtaking urban views.Ideally located in the heart of Downtown Miami, at the corner of North Miami Avenue and 2nd Street, District 225 is just minutes from Bayfront Park, Miami Central Station, Miami Beach, Brickell, Wynwood Arts District, the Design District, Miami International Airport, and major cultural and entertainment destinations.A rare opportunity to secure a prime investment in one of Miamis most vibrant and rapidly growing urban locations Ideal conditions for Brokers and customers
View MoreCourtesy of
Agency Name: Brokers, LLC
Agency Phone: 954-384-1616
Agent Name: Marianela Bracho
Presented by
Agent Name: Patricia Valdivieso
Agent Phone: 305.803.0098
Agency Title: The Keyes Company
Request Info
Send an email with a link to
225 N Miami Ave, Unit 3505, Miami, FL 33132.
Email 225 N Miami Ave, Unit 3505, Miami, FL 33132
Thank you for your inquiry! As a thank you, we have a Special Mortgage Offer for You.
We would like to provide you a free, no-obligation, home loan pre-approval review.