
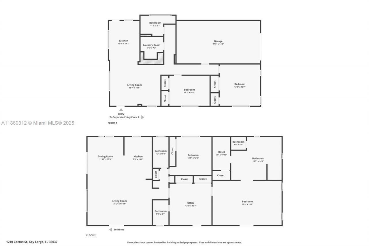
This exceptional all-CBS with concrete roof canal-front home offers direct ocean access to world-class fishing and diving, and is ideally located for an easy mainland commute. The permitted first-floor addition was added in 2001 and features 2 bedrooms, 1.5 baths, and a garage. The upstairs main living area has a recent 720 sq. ft. addition, creating a stunning master suite with a spacious bedroom and spa-like bath. The open-concept upper level blends living, dining, and kitchen spaces, along wi...This exceptional all-CBS with concrete roof canal-front home offers direct ocean access to world-class fishing and diving, and is ideally located for an easy mainland commute. The permitted first-floor addition was added in 2001 and features 2 bedrooms, 1.5 baths, and a garage. The upstairs main living area has a recent 720 sq. ft. addition, creating a stunning master suite with a spacious bedroom and spa-like bath. The open-concept upper level blends living, dining, and kitchen spaces, along with additional bedrooms and 2 baths, perfect for hosting family and friends. Enjoy a 60-foot split-level concrete dock with step-down access for kayaks, paddle boards, and low-profile vessels. Entertain on the expansive porch or take advantage of ample parking for boats, RVs, and trailers
View MoreCourtesy of
Agency Name: American Caribbean Real Estate
Agency Phone: 305-451-4078
Agent Name: Joel Young
Presented by
Agent Name: Patricia Valdivieso
Agent Phone: 305.803.0098
Agency Title: The Keyes Company
Request Info
Send an email with a link to
1210 Cactus St, Key Largo, FL 33037.
Email 1210 Cactus St, Key Largo, FL 33037
Thank you for your inquiry! As a thank you, we have a Special Mortgage Offer for You.
We would like to provide you a free, no-obligation, home loan pre-approval review.